
释放甲醛、甲苯

花粉、飞絮过敏源

灰尘、沙土

PM2.5





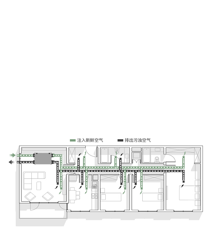
全热交换

空气检测

节能省电

超凡静音
| 号型 | G400-1 | 控制方式 | 触摸/遥控操控 |
| 新风量 | 400m³/h | 安装方式 | 壁挂/落地 |
| 尺寸 | 1020×420×320mm | 输入电压 | 220V/50Hz |
| 初效过滤网尺寸 | W175×H93×D45mm | 功耗 | 10w-55w |
| 高效过滤网尺寸 | W397×H108×D65mm | 辅热功率 | 500w |
| 净化级别 | H1 | PM2.5监测显示 | 有 |
| 噪音 | 18-40dB | 风机 | 直流无刷电机 |